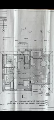
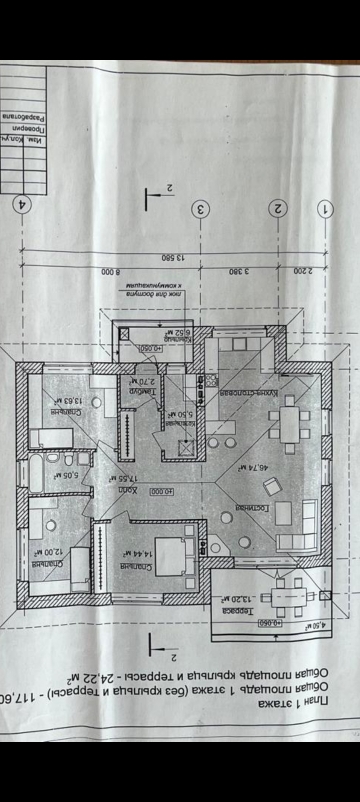
Продается дом, 145 кв.м., / эт
Обзор№ - 676
| Стоимость | 16 000 000 |
|---|---|
| Категория земли | ИЖС |
| Тип комнат | раздельные |
| Ремонт | Требуется ремонт |
| Право собственности | Посредник |
| Категория земли Avito | Индивидуальное жилищное строительство (ИЖС) |
| Способ связи avito | По телефону и в сообщениях |
| Материал стен (Авито дома) | Кирпич |
| Тип отопления cian | Автономное газовое |
| Тип дома cian | Кирпичный |
| Водоснабжение avito | Скважина |
| Канализация avito | Центральная |
| Газ avito | По границе участка |
| Тип строения | Дом |
| Площадь, кв.м. | 145 |
| Площадь участка, сот | 14 |
| Материал стен | Кирпич |
Адрес
| Населенный пункт | Новое Сёмкино |
|---|---|
| Улица | улица Цветочная |

































